Дома под ключ в Королёве
Отзывы из Яндекс Карт
4.9
104 отзывов
Дополнительные услуги 88%
2 154 оценок
Комплектации 89%
1 535 оценок
Планировки 90%
2 484 оценок
Проекты 93%
2 231 оценок
С
Изабелла Русакова02.08.2025 г.
Нам с мужем очень импонировало, что компания использует только проверенные материалы от надежных поставщиков и предоставляет официальную гарантию на все виды работ — это внушает доверие и уверенность в завтрашнем дне.
Отзывы из Google Карт
4.8
63 отзывов
Дополнительные услуги 88%
2 154 оценок
Комплектации 89%
1 535 оценок
Планировки 90%
2 484 оценок
Проекты 93%
2 231 оценок
С
Никола Рогов11.03.2026 г.
В общем, рекомендую БрусДома, сам заказал 9,5х11 с котельной и вторым светом. Только будьте внимательны с актами скрытых работ — у меня не все подписали, потом выяснял.
С
Рома Кочергин01.03.2026 г.
Забор и крыльцо мне доделывали отдельно, не по договору. Но главное — сам дом 10х10,5 с террасой и вторым светом получился отличный. Рекомендую, но держите руку на пульсе.
С
Иоанна Костина18.01.2026 г.
Дом 10х15 для круглогодичного проживания — это серьёзно, БрусДома справились за 8 месяцев, я приезжала почти каждый день, видела как работают, строители пили чай нечасто, всё делали по делу.
С
Зураб Г.16.02.2025 г.
Огромное спасибо проектировщикам и строителям компании Брус дома за мой прекрасный дом из бруса — каждый раз, приезжая за город, испытываю чувство гордости и радости, потому что дом получился именно таким, каким я его и представлял.
Отзывы из 2гис
4.9
38 отзывов
Дополнительные услуги 88%
2 154 оценок
Комплектации 89%
1 535 оценок
Планировки 90%
2 484 оценок
Проекты 93%
2 231 оценок
С
Юнона27.04.2026 г.
Решились на дом 9х12 с цокольным этажом и котельной. Самое смешное — в договоре забыли прописать лестницу на второй этаж, пришлось доплачивать отдельно. В остальном претензий нет, теплосбережение отличное, даже когда за окном минус двадцать.
С
Вивиана Плотникова08.04.2025 г.
Ваша компания заслуживает самых высоких похвал за ответственный подход к работе и умение выполнять обещанное, мой дом был построен в точно оговоренный срок, а его качество превзошло все мои ожидания, за что я вам бесконечно благодарна и готова рекомендовать вас всем своим знакомым.


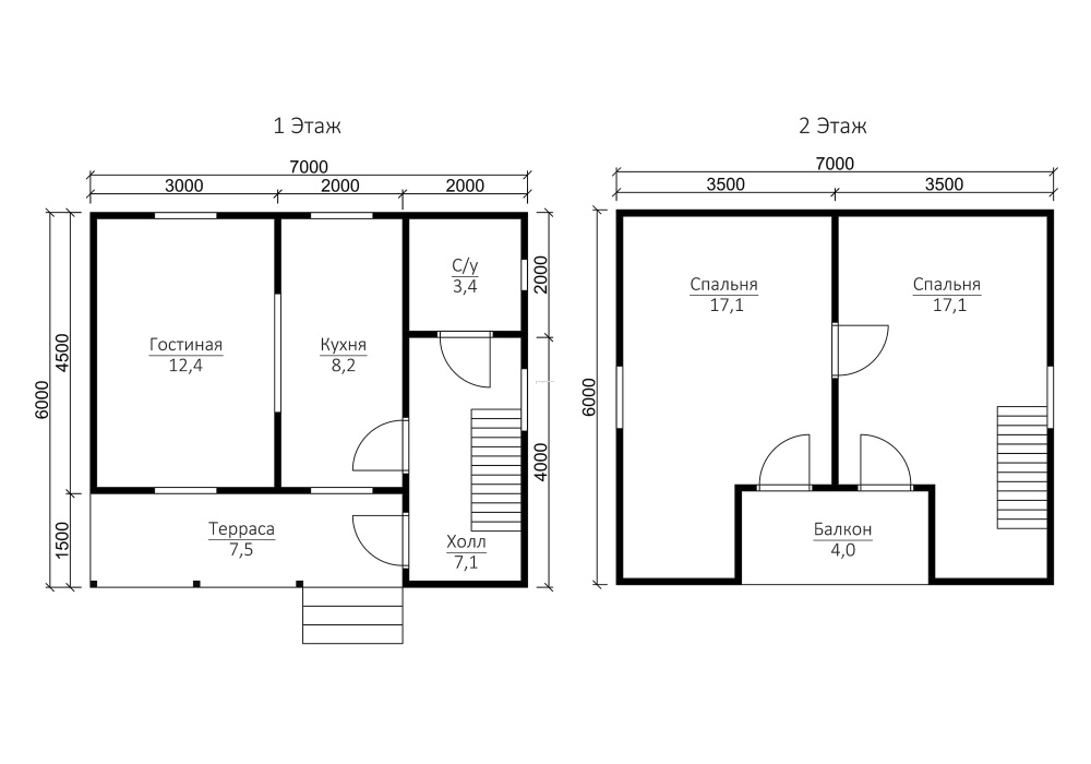
Проект №94 Каркасный дом с террасой и балконом 6х7

каркас из строганой доски
Создайте свой план для этого проекта
и отправьте его нам на расчет в один клик.
Каркасный дом (150 мм) 6х7 Толщина утепления 150 мм 2320400 Заказать
Каркасный дом (200 мм) 6х7 Толщина утепления 200 мм 2520400 Заказать

Для того, чтобы получить свою уникальную планировку, пользуйтесь планировщиком.

С использованием планировщика можно создать наиболее подходящие чертежи, эскизы, планы, схемы дома с мансардой, эркером, с необходимым числом комнат. В результате вы сможете получить проект с отличной планировкой, на 100% отвечающий вашим потребностям.

При заказе дома вы имеете возможность подобрать тип кровли: четырехскатная, двускатная и вальмовая. Двухскатную считают наиболее популярной в не очень больших домах.

Самые востребованные размеры коттеджей и домов сегодня: мини - до 50 м2 (в основном, 1 этажные); компактные - от 70 до 100м2 (обычно 2-этажные); большие постройки - начиная от 150 кв. М и свыше.

Можем предложить дуплексы - каркасные дома с 2-мя входами на несколько семей. Эти дома строятся для двух хозяев и разделяются на две половины, каждая половина с отдельным входом.


Наши работы

Перейти в галерею


Комплектация

Площадь застройки: 42 м2
Длина: 7 м
Ширина: 6 м
Общая площадь: 77 м2
Исполнение Под ключ (с отделкой)
Фундамент Свайно-винтовой или ж/б сваи (рассчитываются отдельно).
Гидроизоляция фундамента Рубероид в два слоя.
Основание (обвязка) Из обрезного бруса 150х150 мм. 150х200 мм. согласно выбранной толщине утепления. Торцевая доска строганая 45х145/45х195+/-5 мм. согласно выбранной толщине утепления. Обработка антисептиком.
Цокольное перекрытие Строганая доска камерной сушки 45х145/45х195+/-5 мм. с шагом 590 мм. Обработка антисептиком.
Пол черновой Обрезная доска камерной сушки 20х100 мм.
Влаго-ветрозащита чернового пола Мембрана Ондутис А100.
Внешние стены Стойки каркаса из строганой доски камерной сушки 45х145/45х195+/-5 мм. с шагом 590 мм. Верхняя двойная и нижняя обвязки из строганой доски камерной сушки 45х145/45х195+/-5 мм. Разгрузочный ригель из строганой доски 45х145+/-5 мм. Укосины из строганой доски 20х95 мм.
Перегородки Стойки каркаса из строганой доски камерной сушки 45х95+/-5 мм. с шагом 590 мм. Верхняя двойная и нижняя обвязки из строганой доски 45х95+/-5 мм. Разгрузочный ригель из строганой доски камерной сушки 45х145+/-5 мм. Укосины из строганой доски камерной сушки 20х95 мм.
Сборка каркаса На гвозди.
Высота от пола до потолка Дом одноэтажный: 2,5 м. Дом с мансардой: 1-ый этаж- 2,5 м.
2-ой этаж (мансарда)- 2,3 м.
Дом в полтора и два этажа:
1-ый этаж 2,5 м.
2-ой этаж 2,4 м. в полутораэтажном доме
2,5 м. в двухэтажном доме.
Внешняя отделка стен Имитация бруса камерной сушки, сорт АВ, толщиной 17 мм. Монтаж через строганый брусок камерной сушки 45х45+/-5 мм. (вентилируемый фасад). Влаго-ветрозащитная мембрана- Ондутис А100.
Внутренняя отделка стен, перегородок Евровагонка камерной сушки, сорт АВ, толщиной 12,5 мм. по строганой рейке 20х40+/-5 мм. либо ГКЛ 12,5 мм.
Отделка потолка Евровагонка камерной сушки, сорт АВ толщиной, 12,5 мм. по строганой рейке 20х40+/-5 мм. либо ГКЛ 12,5 мм.
Пол чистовой Шпунтованная доска камерной сушки толщиной 35-36 мм. сорт АВ. по строганой рейке 20х40+/-5 мм. либо шпунтованная ДСП 16 мм. по разряженной обрешётке из строганой доски камерной сушки 20х95+/-5 мм.
Утепление (пол, потолок) Минеральная вата Knauf 150/200 мм. согласно выбранной толщине утепления.
Утепление стен Плитный утеплитель Rockwool, толщиной 150/200 мм. согласно выбранной толщине утепления.
Звукоизоляция перегородок Плитный утеплитель Rockwool, толщиной 100 мм.
Пароизоляция (стены, перегородки, пол, потолок) Плёнка Ондутис R70. Дополнительная герметизация нахлёстов/примыканий пароизоляционной плёнки клейкой лентой Delta.
Окна Двухкамерные стеклопакеты ПВХ белого цвета, профиль 60 мм. В комплекте: отливы, подоконники, москитные сетки.
Двери Входная- металлическая, утеплённая (Россия). Межкомнатные- филёнчатые.
Наличники на окна и двери Наличник деревянный, строганый, камерной сушки 70-90 мм. с двух сторон.
Лестница (при наличии второго этажа) Деревянная, одно или двухмаршевая. Перила- заводские резные, балясины- заводские точеные, устанавливаются стартовые точёные столбы. Ступени 40х200 мм. Тетива лестницы- 90х140 мм.
Крыша Двускатная, ломаная или вальмовая в соответствии с проектом.
Стропильная система Выполнена из строганой доски камерной сушки 45х145/45х195+/-5 мм. Шаг установки стропил 590 мм.
Обрешётка Выполняется из строганой доски камерной сушки толщиной 20х95+/-5 мм. Шаг крепления обрешетки 350 мм. Контробрешётка выполняется из строганого бруска камерной сушки 45х45+/-5 мм. Крепится по стропилам (вентиляционный зазор).
Подкровельная мембрана Ондутис А100
Кровельное покрытие (на выбор) Металлочерепица 0,45 мм. Цвет на выбор.
Фронтоны (при наличии) Каркас из строганой доски камерной сушки 45х145/45х195+/-5 мм. Обшиваются имитацией бруса камерной сушки, сорт АВ, толщиной 17 мм. Монтаж через строганый брусок камерной сушки 45х45+/-5 мм. (вентилируемый фасад). Влаго-ветрозащитная мембрана- Ондутис А100. Монтаж вентиляционных решёток.
Свесы крыши Ширина 400 мм. Подшиваются вагонкой камерной сушки, сорт АВ.
Терраса/балкон (при наличии) Устанавливаются опорные столбы из строганного бруса камерной сушки 140х140 мм.
Отделка потолка террасы/балкона Евровагонка камерной сушки толщиной 12,5 мм. сорт АВ.
Пол террасы/балкона Шпунтованная доска камерной сушки толщиной 35-36 мм. сорт АВ.
Ограждение террасы/балкона Перила- строганая доска. Балясины- точеные, фигурные. Либо ограждение в скандинавском стиле. Устанавливаются ступени у входа.
Допуск на геометрические параметры Составляет +/- 50 мм по длине с каждой стороны.
Допускается стыковка имитации бруса, вагонки и половой доски По всему периметру стен дома (если ширина и длина дома более 6,0 метров). Вагонки и доски пола в каждой отдельной комнате.
Допуски по имитации бруса, вагонке, доске +/- 5 мм.
В стоимость включена Доставка комплекта материала в радиусе 500 км. от г. Пестова Новгородской области и сборка дома на вашем участке.
Гарантия 5 лет.
Бытовка строительная 2,0х3,0 м. каркасно-щитовая. Стоимость 23000 руб. Остаётся на участке Заказчика.
Туалет 1,0х1,0 м. каркасно-щитовой. Стоимость 12000 руб. Остаётся на участке Заказчика.
Генератор Стоимость аренды на весь срок строительства 15000 руб. ГСМ за счёт Заказчика.

Постройка дома может осуществляться в двух вариантах: под усадку, когда дом будет отстаиваться в течение некоторого времени и под ключ.

Зимой мастера советуют строить дом в холодную погоду, чтобы каркас не успел промокнуть, в летний сезон - не в дождливую.

Максимально подходящими для дачи или сада стали домики на винтовых сваях, у нас имеются одноэтажные и полуторатажные дома.

Если вы собираетесь проживать постоянно, можем предложить теплые и надежные дома на ленточных и плитных фундаментах.

Имеется два варианта толщины утепления: 150 мм и 200 мм. Каркасные дома с толщиной стен 200 мм получаются теплее, но стоят дороже.

Дополнительные услуги


Дом из каркаса балконом и маленькой террасой, по плану 94 полутораэтажный с теплоизоляционной двускатной конструкцией крыши, отличается экологической чистотой, за счет использования стружечных плит, ваты минеральной и базальтовой, что обеспечивает высокую термоизоляцию, комфортный микроклимат в доме. Размеры жилища составляют 6х7 м., общая жилая площадь - 77 кв.м.. Наша организация в минимальные сроки возведет каркасник по индивидуальному или типовому проекту в Королёве в оптимальное для вас время года и на любом варианте грунта.

Популярные проекты


Дома из бруса 6х6 Бани из бруса 6х8 Бани из бруса 6х6
хит продаж
Тип:
Общая площадь: 2
1669900
от 1590400
хит продаж
Тип: с балконом, с маленькой террасой
Общая площадь: 2
2436400
от 2320400
хит продаж
Тип:
Общая площадь: 2
1606900
от 1530400
Дома из бруса

Заказать или задать вопрос



Заказать или задать вопрос

Заказать звонок